wika磁翻板液位计 BNA-H磁翻板物位计 磁翻柱液位计 柯普乐液位计 德国wika法兰式液位计 wika顶装式物位计 柯普乐侧装式液位计 wika顶装式磁翻板液位计 UTN-C00 BNA-H BNA-SD BNA-P
![]() |
![]() |
![]() |
![]() |
![]() |
![]() |
![]() |
| 发布时间:2021-06-30 | ||||||
德国wika磁翻柱式液位计双腔体型BNA-SD 柯普乐磁致伸缩液位计描述:
测量室,带导杆和磁性的浮子系统。安装在船只上是通过适当的方式进行的。
永磁系统,连接到浮子通过导杆传送所测量的液面。
在容器中由浮子,无接触,到磁性。
安装在测量室外面的显示器。
在这个磁性显示器中有红/白塑料滚筒。
或带有10毫米金属条磁铁的不锈钢襟翼穿过测量室的墙壁。为了从白色增加到红色;从红色上升到红色至白色。因此,磁显示指示。
进一步的特点
简单、健壮、坚固的设计
翻转高度的测量和指示
易燃的,有毒的,热的,激动的和高度的没有电源的话,磁力的作用
即使在电源的情况下,滚筒显示也是有保证的。
适用于所有工业应用
耐腐蚀材料
德国wika磁翻柱式液位计双腔体型BNA-SD 柯普乐磁致伸缩液位计特色:
工艺和程序专用生产
作业限额:
-工作温度:t=-60.+300°C
-操作压力:P=真空至40巴
各种不同的过程连接
可能安装电平传感器和磁开关
作为一种选择
防爆版
德国wika磁翻柱式液位计双腔体型BNA-SD 柯普乐磁致伸缩液位计参数:
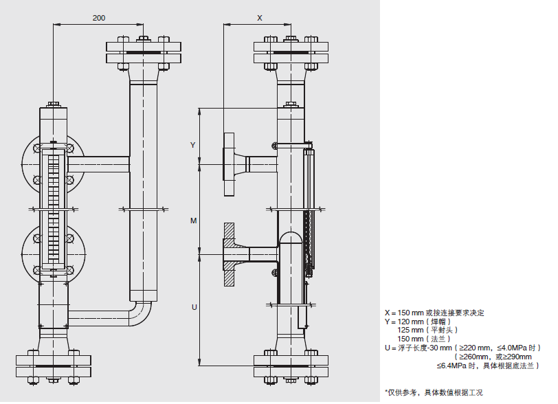
旁路管 φ60.3x2 mm,*大4.0MPa
φ60.3x2.6 mm,*大6 4MPa
φ60.3x2.77mm,*大6 4MPa
旁路管顶部 焊帽(≤2.5 MPa ) .
平封头带BSP 1/2通气塞( >2.5MPa )
更多可选项
■法兰
■通气阀
■通气法兰
旁路管底部 法兰带BSP 1/2"排污塞
更多可选项
■排污阀
■排污法兰
过程连接 侧侧连接,数量2
法兰: HG/T 20592,DN10- DN100, PN6 - PN63
HG/T 20615,1/2"-4", class150-class600
EN 1092-1,DN10- DN100, PN6 - PN63
ANSIB16.5, 1/2" - 4", class150 _class600
焊接端: 1/2"- 1"
外螺纹: GNPT 1/2”- 1"
内螺纹: GNPT 1/2" - 1”
顶部连接 法兰: HG/T 20592,DN50- DN100,PN6- PN63
扩展传感器 HG/T20615,2"- 4"。class150-dass600
EN 1092-1, DN50- DN100,PN6 - PN63
ANSIB16.5, 2"-4", dlass150- -class600
平封头带内螺纹: G/NPT 1/2"-1"
中心距M 150mm~ 6000mm (更大尺寸可根据要求定制)
主体材质 不锈钢304,316L, 316Ti ,或双标316/316L
额定压力 *大6.4MPa
介质温度 -200~ +450C
浮子 基本型: ..S.
耐压型: .J.J.J_.见BFT样本
磁性显示体 标准型: BMD-S, -5...+200C
高温型: BMD-F,200...+450.见BMD样本
液位传感器 干簧液位传感/变送器,见BL R样本
磁致伸缩液位变送器,见BLM样本
导波雷达物位计,见GTR样本
磁性开关:BGU磁性开关,见BGU样本
*选项
注意:如有特殊要求请在订货时提出。
德国wika柯普乐磁致伸缩、磁翻板液位计常规型号:
BNA-C BNA-S BNA-H BNA-P BNA-SD
UTN-C0O UTN-S0O
UTN-CA1, UTN-CA2, UTN-CBD, UTN-CGE, UTN-CBC
UTN-SA1, UTN-SA2, UTN-SBD, UTN-SGE, UTN-SBC
UTN-C0OC UTN-C0OC UTN-S0OC UTN-S0OC
UTN-CA1C, UTN-CA2C, UTN-CBDC, UTN-CGEC, UTN-CBC
UTN-SA1C, UTN-SA2C, UTN-SBDC, UTN-SGEC, UTN-SBC
实物图


走进奥信
公司简介 联系我们解决方案
技术文章 行业应用我们的理念
用科技创新的理念撰写辉煌篇章,向世界展现一幅优品的设计蓝图。
专注的态度成就专业的品质,西安奥信与您携手追求时尚品。
购买的愉悦不仅仅是获得,更是其中的服务,以温馨的服务带来全新的体验。