UE开关 J120-486 防爆压力开关 氟橡胶防腐 防爆压力开关 耐腐专用 UE 开关
![]() |
![]() |
![]() |
![]() |
![]() |
![]() |
![]() |
| 发布时间:2021-06-15 | ||||||
美国UE开关J120-486防爆压力开关氟橡胶防腐
防爆压力开关的工作原理
防爆压力开关是通过坚固的密封壳体将接线触点密闭在坚固空间中达到隔爆的效果。防爆压力开关工作原理为纯机械形变导致微动开关动作。当压力增加时,作用在不同的传感压力元器件(膜片、波纹管、活塞)产生形变,将向上移动,通过栏杆弹簧等机械结构,启动上端的微动开关,使电信号输出,设定方式从功能原理上又分成连续位移型和力平衡型。防爆压力开关按原理可分为机械防爆压力开关和电子防爆压力开关,机械式中又分为普通的和密封型。
*
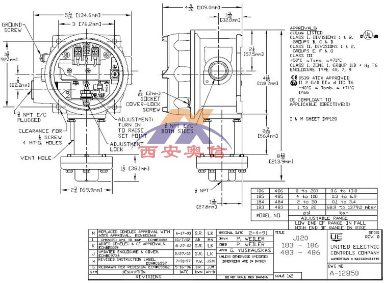
UL注册:cULus*:温度: UL 873. UL1203,CSA C22.2 文件#E43374
压力: UL 508. UL 698. CSA C22.2 文件#E40857
级别Ⅰ. 1 & 2区. 组别 B. C和 D
级别Ⅱ. 1 & 2区.组别 E. F和 G
级别Ⅲ. 外壳形式 4X,7,9;IP66
CENELEC 防火结构.符合EN 50 014/50 018,EEx dⅡC T6 DEMKO*#02E 0212168
IS CENELEC:本质安全符合EN50 014,EN50 020,EEX iaⅡC T6(仅适用于M405选项,不包括CENELEC防火条款) DEMKO*#01E 0113749
SAA Ex dⅡT6. IP66. 级别Ⅰ.区域1,符合NACE MR-0175 (以171-193,483-493为准)
FM*. 3615及3600级别 (不是所有型号.参考选项M415的说明)
CE*,符合低电压规程(LVD)
CE*,符合压力设备规程(PED 97/23/EC)
J120-486美国UE防爆开关氟橡胶防腐压力开关 压力设定范围0.6-13.8bar *大压力500Psi/34.5bar 耐压1000Psi/68.9bar
316L不锈钢膜片(可选哈氏合金C或蒙乃尔膜片);氟橡胶(Viton)GLT 0型圈(可选Kalrea 乙丙烯或者是Aflas); 316不锈钢1/2NPTF压力接口 (可选哈氏合金B或者C,蒙乃尔等材质) 0.06"感压孔,488及489 有一个316L不锈钢1/2NPTF压力接口
通用性能参数
储存温度:-65 to 160℉(-54~71℃)
环境温度:-58 to 160℉(-50 to 71℃);
设定点重复性:压力型号183-194,为可调范围的±1.5%;
切换差:分为可调和不可调两种(参考选型表数据)
抗冲击:经10 毫秒、15G 冲击实验后,可重现设定点
抗振动:经2.5G、5—500Hz 振动实验后,可重现设定点
外壳:铝合金压铸壳体(Max.0.4%铜);环氧树脂涂层;垫圈密封;前标为J,G,F 的开关具有内部设定点锁定功能;铝合金铭牌
外壳等级:外壳等级为4X。 Class I Division 1的开关外壳等级为7;ClassII Division 1开关外壳等级为9。IP66。
外壳防爆等级:Ex d II C T6。
膜片材质:焊接316L不锈钢
压力接口:1/2NPTF 可根据现场需要,特殊订制
开关输出:一个或两个单刀双掷(SPDT)输出;双开关可在调整范围内进行百分bai分别设定。
触电电气额定值:15A125/250/480 VAC(标准)开关可接“常开型”或“常闭型”
电器接口:两个3/4''NPT E/C;标准接线端子
设定点:双点和三点开关每个报警值间隔不得超过量程的30%。
使用寿命:100 0000次循环
J120-48X具体参数
型号 可调整设定范围 死区 zd压力 耐压**
Model Adjustable Set Point Range Deadband Over Range Proof
psi bar psi bar psi bar psi bar
316L stainless steel diaphragm (optional Hastelloy® C or Monel®); Viton® GLT O-Ring (optional Kalrez® Silicone Ethylene Propylene or Aflas®); 316stainless steel 1/2” NPT (female) pressure connection (optional Hastelloy® C or Monel®) large 0.06” orifice for clean-out purposes. Models 188 and189 have a 316L stainless steel 1/2” NPT (female) pressure connection (NACE MR-0175 compliant)
483 1 to 20 01 to 14 0.3 to 2.5 207 to 1724 mbar 500 345 1000 68.9
484 2 to 50 01 to 34 0.3 to 3 207 to 2068 mbar 500 345 1000 68.9
485 4 to 100 03 to 69 0.5 to 6 345 to 4137 mbar 500 345 1000 68.9
486 8 to 200 06 to 138 1 to 11 01 to 08 500 345 1000 68.9
488 50 to 1000 34 to 689 25 to 125 17 to 86 2000 1379 7000 482.6
489 250 to 3500 172 to 2413 50 to 300 34 to 207 4000 2758 7000 482.6
美国UE开关J120-486防爆压力开关氟橡胶防腐

走进奥信
公司简介 联系我们解决方案
技术文章 行业应用我们的理念
用科技创新的理念撰写辉煌篇章,向世界展现一幅优品的设计蓝图。
专注的态度成就专业的品质,西安奥信与您携手追求时尚品。
购买的愉悦不仅仅是获得,更是其中的服务,以温馨的服务带来全新的体验。