产品描述
ZBSF系列全不锈钢电磁阀是工业过程自动化控制系用的执行器。它在接受电控信号后能自动开启或关闭,实现对管道中的液体介质的通断或流量调节控制。
蒸汽电磁阀可广泛地应用于纺织、印刷、化工、塑料、橡胶、制药、食品、建材、机械、电器、表面处理等生产和科研部门以及浴室、食堂、空调等人们日常生活设施中。ZBSF-Y系列电磁阀主要用于腐蚀性液体、超净液体和食用液体等液体介质的控制。
产品特点
采用特种不锈钢制作,适用于食用流体、超净流体及腐蚀性介质
不同的使用介质,采用针对性的密封, 更加提高电磁阀合理性
液体、气体、油品可混合使用,更加提高电磁阀的使用范围
特殊场合可持续长时间通电,采用耐高温材料,介质流体温度可达220℃
结构原理
本阀为分步动作直接先导式电磁阀,根据断电时所处开关状态的不同,可分为常闭电磁阀和常开电磁阀,线圈通电后衔铁在电磁力作用下先带动副阀开启,主阀在所形成的介质压差和电磁力的作用下而开启。线圈断电,衔铁部件复位,主副阀利用介质压力而紧密关闭。
常开电磁阀,线圈通电后,衔铁在磁力作用下下移,推动副阀阀塞下移,直到和副阀座压紧副阀关闭,由于主阀阀杯上下压差趋于相等,主阀阀杯由磁力和自重压紧密封面,阀门关闭。线圈断电,磁力为零,衔铁和副阀阀塞由弹簧作用上升,副阀打开,主阀阀杯内介质经副阀流走,压力下降,主阀阀杯由上下压差作用向上升起,主阀打开,阀门开启。
ZBSF电磁阀: 3014不锈钢材质,法兰安装,0-1.6Mpa压力,温度:0-200℃
订货须知
介质: 水 空气 液压油 蒸汽 天然气 液化气等
温度范围: 现场实际使用温度
压力范围: 现场实际使用压力大小
管道口径是多少?
安装方式: 法兰 / 螺纹
材质要求: 不锈钢 铸铁 铸钢 防腐
附件: 可选手动功能、 信号反馈、 防爆
技术参数
| 项目 | 说明 | |||||||||||
| 工作介质 |
腐蚀性流体、超净流体、食用流体 ZBSF-1:气体用 ZBSF-1Y:液体用 ZBSF-2:气体用 ZBSF-2Y:液体用 |
|||||||||||
| 介质温度(℃) |
ZBSF-1(1Y):≤60℃ ZBSF-2(2):≤280℃ |
|||||||||||
| 公称压力(MPa) | 1.6 | |||||||||||
| 工作压差(MPa) | 0~1.6 | 0.05~1.6 | ||||||||||
| 公称通径(mm) | 10 | 15 | 20 | 25 | 32 | 40 | 50 | 65 | 80 | 100 | 125 | 150 |
| 电源电压 | AC220V其余规格可作特殊订货 | |||||||||||
| 使用寿命 | 按JB/T7352-94规定 | |||||||||||
| 额定流量系数 | ||||||||||||
| 泄漏量 | 按JB/T7352-94·F规定 | |||||||||||
| 功耗 | AC≤70VA | |||||||||||

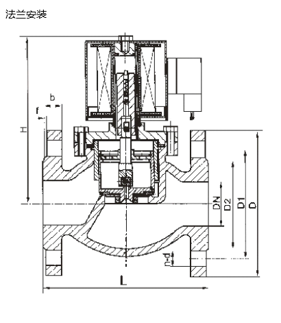
安装尺寸图

| DN | L | H | D | D1 | D2 | b | f | n-d |
| 10 | 115 | 148 | Φ90 | Φ60 | Φ41 | 14 | 2 | 4-Φ14 |
| 15 | 115 | 148 | Φ95 | Φ65 | Φ46 | 14 | 2 | 4-Φ14 |
| 20 | 115 | 148 | Φ105 | Φ75 | Φ56 | 16 | 2 | 4-Φ14 |
| 25 | 125 | 148 | Φ115 | Φ85 | Φ65 | 16 | 3 | 4-Φ14 |
| 32 | 150 | 182 | Φ140 | Φ100 | Φ76 | 18 | 3 | 4-Φ18 |
| 40 | 165 | 182 | Φ150 | Φ110 | Φ84 | 18 | 3 | 4-Φ18 |
| 50 | 190 | 192 | Φ160 | Φ125 | Φ99 | 20 | 3 | 4-Φ18 |
| 65 | 290 | 265 | Φ185 | Φ145 | Φ118 | 20 | 3 | 8-Φ18 |
| 80 | 310 | 276 | Φ200 | Φ160 | Φ132 | 20 | 3 | 8-Φ18 |
| 100 | 350 | 373 | Φ220 | Φ185 | Φ156 | 22 | 3 | 8-Φ18 |
| 125 | 400 | 416 | Φ250 | Φ210 | Φ184 | 22 | 3 | 8-Φ18 |
| 150 | 480 | 440 | Φ285 | Φ240 | Φ211 | 24 | 3 | 8-Φ22 |
走进奥信
公司简介 联系我们解决方案
技术文章 行业应用我们的理念
用科技创新的理念撰写辉煌篇章,向世界展现一幅优品的设计蓝图。
专注的态度成就专业的品质,西安奥信与您携手追求时尚品。
购买的愉悦不仅仅是获得,更是其中的服务,以温馨的服务带来全新的体验。